Old Soul
München-Schwabing
Georgenstr. 136c

01

Kurzbeschreibung
ALTBAU-CHARME MEETS URBAN CHIC

Das imposante, denkmalgeschützte Gebäude mit 16 Wohneinheiten stammt aus dem Baujahr 1900 und ist Teil einer historischen Häuserzeile im angesagten Schwabing, einer der begehrtesten Lagen Münchens. Das Gebäude vereint historische Architektur mit modernem Komfort, während es mit seiner prächtigen Fassade und den kunstvoll gestalteten Details wie einem Erkerturm und Reliefbändern hervorsticht.

Fortschreitende Modernisierung

Die Modernisierung des Gemeinschaftseigentums wird sukzessive und zügig betrieben.

Dach / Dachgeschossausbau Ab Herbst 2024 wird das Dachgeschoss zu Wohnraum ausgebaut; in diesem Rahmen wird der Dachstuhl ertüchtigt, gedämmt und das Dach neu eingedeckt.

Untergeschoss Das baujahrestypische Untergeschoss mit Gewölbedecke wird sorgfältig aufgearbeitet. Hier entstehen moderne Technikräume und Kellerabteile mit eigenem Licht- und Stromanschluss für die einzelnen Wohneinheiten.

Einbau eines Personenaufzugs Weiterhin ist der Einbau eines maßgefertigten, eleganten Glaslifts im Treppenhaus im 2. Quartal 2025 geplant, der die Etagen vom Untergeschoss bis in das 4. Obergeschoss miteinander verbindet.

Entree / Treppenhaus In einem letzten Schritt wird das historische Treppenhaus sorgfältig restauriert, die Wohnungstüren aufgearbeitet und entsprechend dem historischen Farbschema gestrichen sowie das Entree mit Zementfliesen in historischem Design und einer stylischen Deckenleuchte repräsentativ gestaltet.

02

Objektdaten
Grunddaten
Objekt
2025-106
Adresse
Georgenstraße 136c
80797 München
Lift
in Planung für 2025
Baujahr
1900
Denkmalschutz
ja
Modernisierung
2024
Zustand
Erstbezug nach Sanierung
Modernisierungen
Elektrische Anlagen
erneuert
Sanitär- & Heizungsleitung
erneuert
Heizkörper
erneuert
Historische Parkettböden
erhalten und saniert
Historische Kassettentüre
erhalten und saniert
Heizung
Gasetagenheizung wird auf Fernwärme umgestellt
Kaufpreise
Geschoss
Erdgeschoss – 4. OG
Zimmer
1 – 5,5
Wohnflächen
19 bis 185 m²
Kaufpreise
325.000 € bis 2.070.000,00 €
Geschoss
Dachgeschoss
Zimmer
6 – 7,5
Wohnflächen
132 bis 185 m²
Kaufpreise
2.850.000,00 bis 3.980.000,00 €
Wohneinheiten
Einheit Etage Zimmer Preis Status Plan
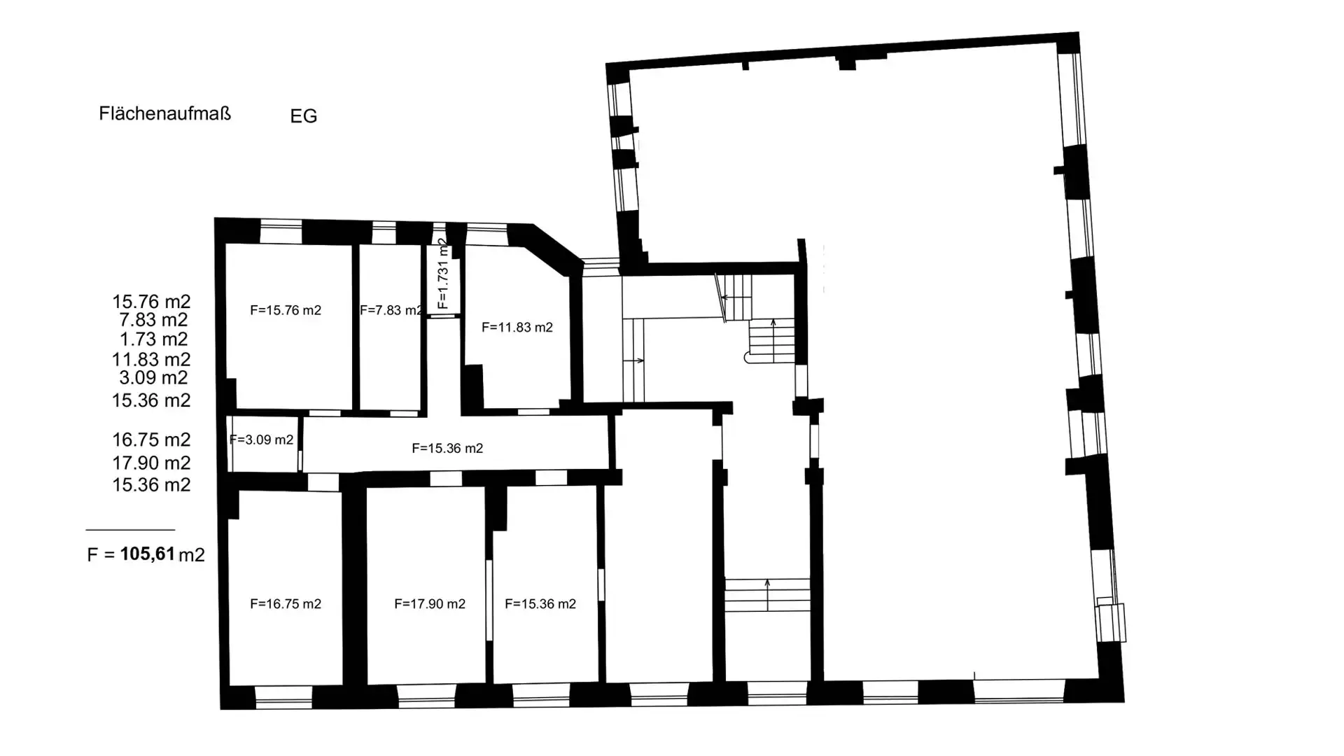
WHG 1 EG 4 105 1.450.000 € vermietet Grundriss 1Grundriss 1
WHG 2 EG 4 96 1.350.000 € verfügbar Grundriss 2Grundriss 2
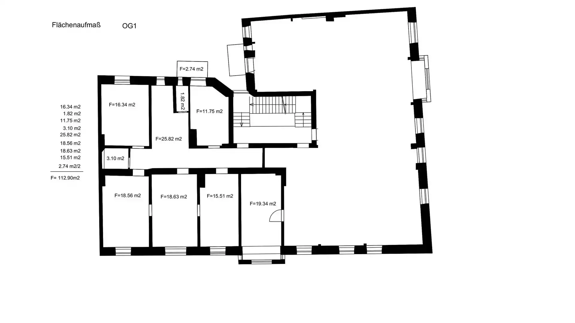
WHG 3 1. OG 4 113 1.600.000 € vermietet Grundriss 3Grundriss 3
WHG 4 1. OG 3 87 1.300.000 € reserviert Grundriss 4Grundriss 4
WHG 5 1. OG 4 92 - verkauft -
WHG 6 2. OG 6 139 2.050.000 € reserviert Grundriss 6Grundriss 6
WHG 7 2. OG 2 75 - verkauft -
WHG 8 2. OG 4 96 - verkauft -
WHG 9 3. OG 5,5 138 2.070.000 € reserviert Grundriss 9Grundriss 9
WHG 10 3. OG 2 75 - verkauft -
WHG 11 3. OG 3,5 96 1.550.000 € vermietet Grundriss 11Grundriss 11
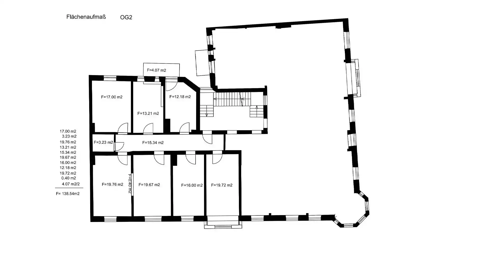
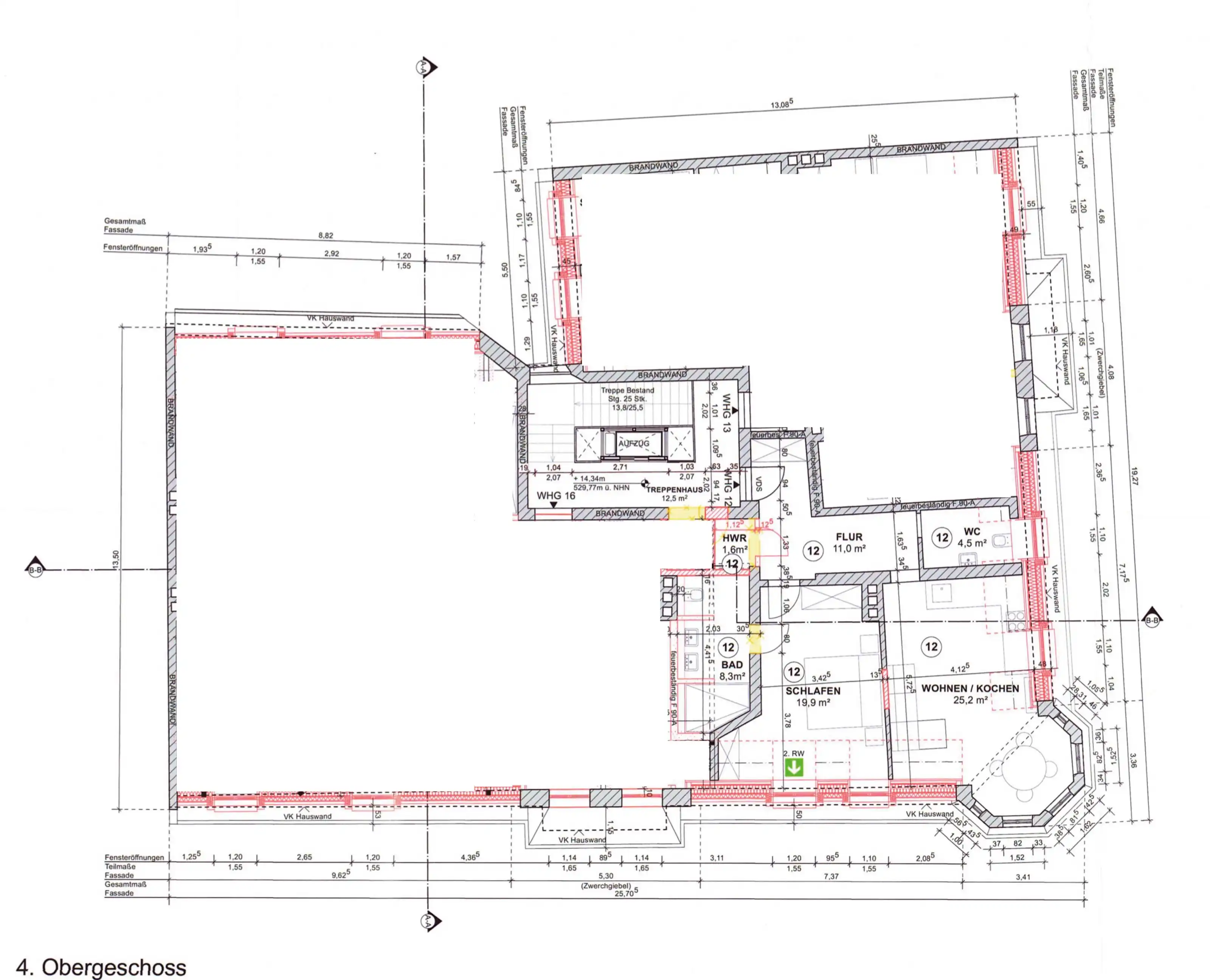
WHG 12 4. OG 2 71 1.450.000 € verfügbar Grundriss 12Grundriss 12
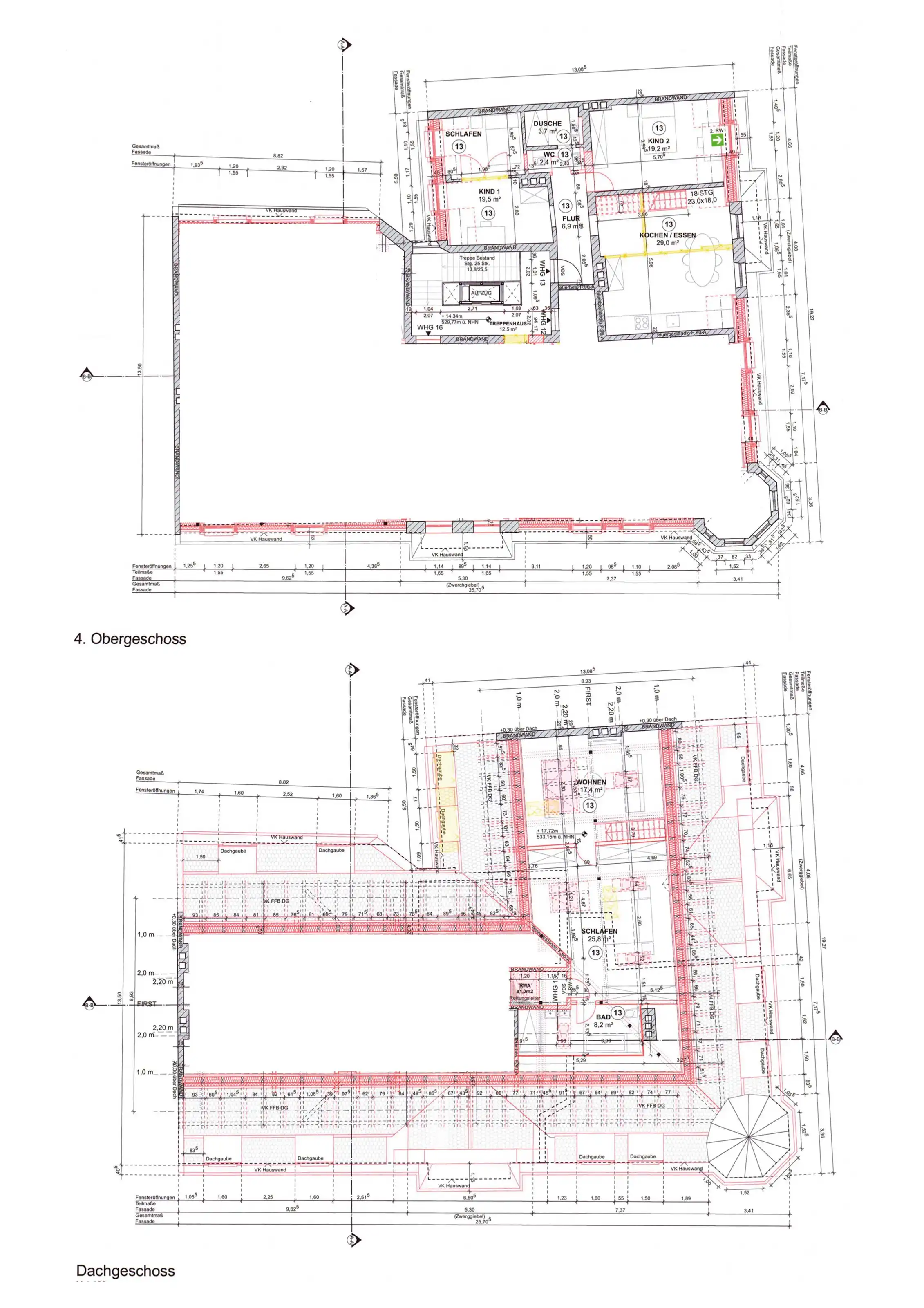
WHG 13 4. + 5. OG 6 132 2.850.000 € verfügbar Grundriss 13Grundriss 13
WHG 14 EG 1 19 325.000 € verfügbar Grundriss 14Grundriss 14
WHG 15 EG 1 41 660.000 € verfügbar Grundriss 15Grundriss 15
WHG 16 4. + 5. OG 7,5 185 3.980.000 € verfügbar Grundriss 16Grundriss 16

Wohneinheiten

Einheit Etage Zimmer Preis Status Plan
WHG 1 EG 4 105 1.450.000 € vermietet Grundriss 1
WHG 2 EG 4 96 1.350.000 € verfügbar -
WHG 3 1. OG 4 113 1.600.000 € vermietet Grundriss 3
WHG 4 1. OG 3 89 1.300.000 € verfügbar Grundriss 4
WHG 5 1. OG 4 92 1.380.000 € verfügbar Grundriss 5
WHG 6 2. OG 6 139 2.050.000 € vermietet Grundriss 6
WHG 7 2. OG 2 75 - verkauft -
WHG 8 2. OG 4 96 1.490.000 € verfügbar Grundriss 8
WHG 9 3. OG 5,5 138 2.070.000 € vermietet Grundriss 9
WHG 10 3. OG 2 75 1.225.000 € verfügbar Grundriss 10
WHG 11 3. OG 3,5 96 1.550.000 € vermietet Grundriss 11
WHG 12 4. OG 2 71 1.450.000 € verfügbar -
WHG 13 4+5. OG 6 132 2.850.000 € verfügbar -
WHG 14 EG 1 19 325.000 € verfügbar Grundriss 14
WHG 15 EG 1 41 660.000 € verfügbar Grundriss 15
WHG 16 4+5. OG 7,5 185 3.980.000 € verfügbar -

Wohneinheiten

Einheit
Etage
Zimmer
Preis/Status
WHG 1
EG
4
105
auf Anfrage
WHG 2
EG
4
96
auf Anfrage
WHG 3
1. OG
4
113
auf Anfrage
WHG 4
1. OG
3
89
auf Anfrage
WHG 5
1. OG
4
92
auf Anfrage
WHG 6
2. OG
6
139
auf Anfrage
WHG 7
2. OG
2
75
verkauft
WHG 8
2. OG
4
96
auf Anfrage
WHG 9
3. OG
5,5
138
auf Anfrage
WHG 10
3. OG
2
77
auf Anfrage
WHG 11
3. OG
3,5
96
auf Anfrage
WHG 12
4. OG
2
71
auf Anfrage
WHG 13
4+5. OG
6
132
auf Anfrage
WHG 14
EG
1
19
auf Anfrage
WHG 15
EG
1
41
auf Anfrage
WHG 16
4+5. OG
7,5
185
auf Anfrage
Eindrücke Musterwohnungen
Wünschen Sie
mehr Informationen?

03

Lage

04

Impressionen
  • Wohnung mit historischer Architektur und modernem Komfort
  • wohnung kaufen münchen zentrum
  • wohnung kaufen münchen schwabing
  • wohnung in münchen kaufen
  • wohnung kaufen
  • eigentumswohnung münchen kaufen
  • wohnung kaufen münchen mit balkon
  • altbauwohnung münchen
  • eigentumswohnung münchen provisionsfrei
  • wohnung münchen als kapitalanlage
  • wohnung kaufen münchen zentrum - schwabing
Scroll